Senior Thesis Studio Prompt: Develop a space of your choosing that can be relevantly applied to the nearby town of Franklinton, Ohio. For my project, I elected to create an afterschool education space for students in grades 6-12.
Only 20% of adults living in Franklinton have at least a college degree, while 30% have not graduated from high school.
All students in Franklinton in grades 6-8 attend Starling K-8, which sees high rates of chronic absenteeism and suspension rates in comparison to the all Ohio Average. The chronic absenteeism rate at Starling K-8 is 63% to Ohio's 19%, and the suspension rate is 27% to Ohio's 7%.
The average test scores from grades 6-8 fall far below the all Ohio average, with math scores at 15% to Ohio's 58% and science scores at 22% to Ohio's 66%.
Students in grades 9-12 in Franklinton attend West High School, which has a 4 year graduation rate of 64%.
Graduates from West High School are more likely to need remedial help in college than the average graduate in Ohio, with 15% needing remediation in English to Ohio's 7%, and 38% needing remediation in Math to Ohio's 13%.
The poverty rate in Franklinton is 52%, with the largest number of those experiencing poverty being under 18.
62% of Franklinton's residents receive SNAP benefits
13.2% of Franklinton residents do not have health insurance, and about 50% of those who have health insurance are covered by public plans
The average household income in East Franklinton
is $27,130 while in West Franklinton it falls to $13,512
Student academic performance in Franklinton is falling far below average levels in Ohio. Additionally, chronic absenteeism and suspension rates are extremely high. Combined, these factors create a struggling academic environment.
Main Research Question: How can we create a spatial experience that caters to diverse needs and creates a sense of belonging for all?
Many students in the Franklinton area are struggling academically, which can be attributed to a lack of access to resources. I hope to create a space where students are not only given the necessary resources for academic success and positive education experiences, but also have the opportunity to foster a love of learning through creative exploration. My design aims to break the traditional classroom design, looking at how different learning methods can be accommodated, including the way neurodiverse students learn. I also plan to push the definition of a library into the 21st century, exploring how technological advances can be infused into learning.
Understand ways of creating a sense of belonging for a diverse user group through lighting, materiality, furniture selection, color theory, and the application of biophilia
Learn how active classroom concepts can be applied to project-based learning
Understand how arts education and technology can combine to appeal to the interests of youth
Create a safe space for youth to explore different passions and interests that are not in a typical school curriculum
Develop learning spaces for diverse learning styles
Integrate technology into all aspects of learning
Provide students with the proper resources and advising to set them up for success
Looking at the diverse needs of students in education today, I intend to create a low stress environment where creativity can run free. Utilizing intentional color selection that creates intuitive wayfinding and sooths the nervous system, relaxed furniture and finish selections that allow students to relax in the space, biophilic design principles, and a wide range of workspaces, this space responds to different learning styles and student interests' which creates a sense of belonging for all students within the space. Additionally, students are encouraged to explore different creative interests to encourage a love of learning, and are supplied with technological resources to help further their exploration.

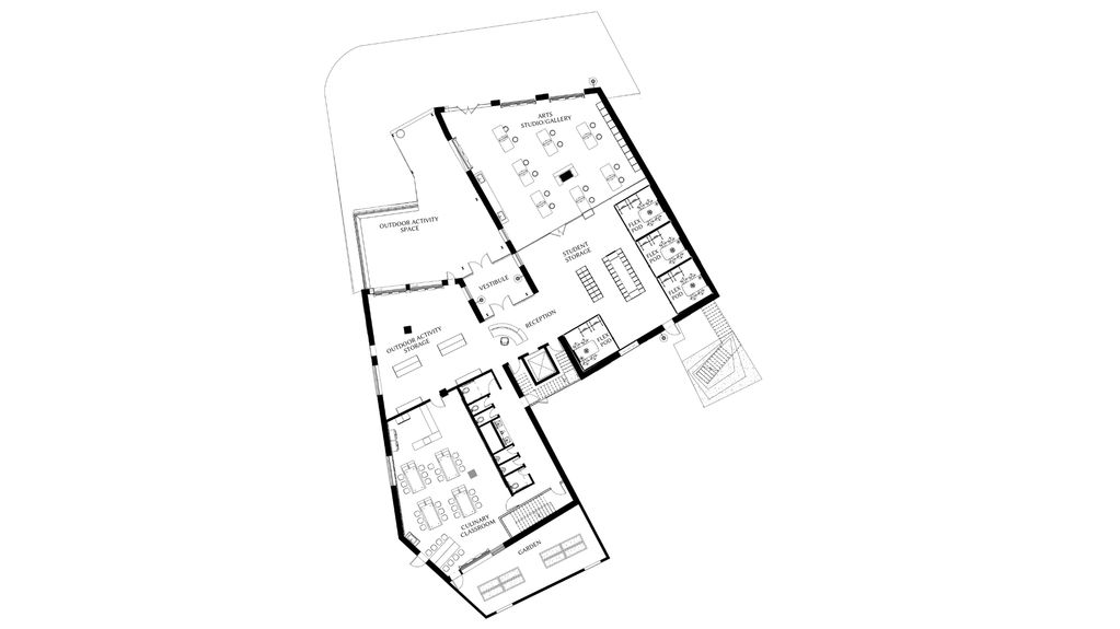
First Floor Plan *based on 373-375 W Rich St in Franklinton, Ohio

Second Floor Plan *based on 373-375 W Rich St in Franklinton, Ohio

Third Floor Plan *based on 373-375 W Rich St in Franklinton, Ohio
The material selection emulates the energy and noise levels associated with each floor. The floors move from most energy and noise at the first floor to most quiet and low energy on the top floor. This is reflected in the material selection with bright energetic colors and patterns on the first floor to a monochromatic selection on the top floor.
Arts Studio - Classroom
We use cookies to analyze website traffic and optimize your website experience. By accepting our use of cookies, your data will be aggregated with all other user data.